Immobilienmakler Montepulciano Baugrundstücke in der Toskana
E-Mail Immobilienmakler Baugrundstücke Toskana
Baugrundstück Siena
Baugrundstück Provinz Siena Toskana
Baugrundstücke Toskana kaufen

Baugrundstück / Bauland in Montepulciano - Siena - Toskana - Italien zum Kaufen

  • Lage: nördliche Randlage von Montepulciano - Siena - Toskana, ca. 2,5 km
    von Montepulciano, 20 km von Sinalunga und 14 km von Chianciano Terme
  • Baugrundstück / Bauland: ca. 5.500 m² - optional + 5.000 m² ( ca. ),
    umgeben von Weinbergen des Nobile di Montepulciano
  • Projekt mit Baugenehmigung für Landhaus / Ferienhaus / Einfamilienhaus ...
    mit max. 410 m² Wohnfläche und Swimming Pool
  • Kaufpreis Baugrundstück / Bauland
    inklusive Bauplanung und Baugenehmigung: 395.000,- €
  • Die vorhandene Planung zum Grundstück muss nicht übernommen werden !

Montepulciano Baugrundstück / Bauland mit Baugenehmigung für ein Landhaus / Landvilla / Ferienhaus / Einfamilienhaus der Provinz Siena / Toskana / Italien

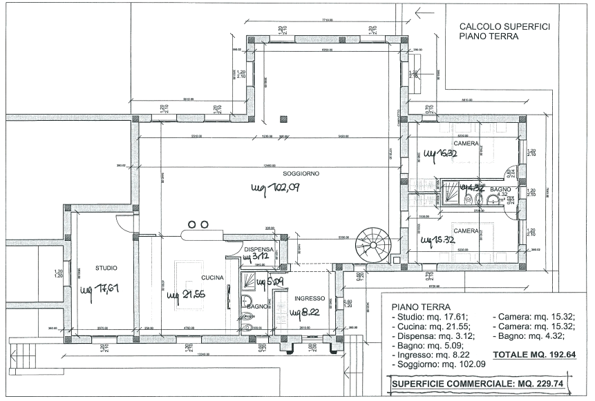
Erdgeschoss vom Landhaus auf dem Baugrundstück
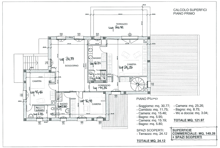
Obergeschoss vom Landhaus des Baugrundstückes
Baugrundstück in Montepulciano Toskana
Verkäufer Immobilienmakler Baugrundstücke der Toskana Italien
Baugrundstück in Montepulciano Toskana
Landhaus für das Baugrundstück
Bauland in Montepulciano
Bauland Toskana
Montepulciano
Baugrundstücke Toskana kaufen
Siena Toskana Baugrundstück für Landhaus
Bauland in der Toskana Italien kaufen
Landhaus mit Pool möglich für das Baugrundstück
Ferienhaus zum Baugrundstück in der Toskana
mögliches Einfamilienhaus auf dem Baugrundstück

Baugrundstück / Bauland
mit 5.500 m²

optional ca.
+ 5.000 m²