Immobilienmakler Einfamilienhäuser in Italien am Gardasee
E-Mail Immobilienmakler Einfamilienhäuser Lazise Gardasee Italien
Gardasee
Einfamilienhaus

Wohnhaus / Einfamilienhaus am Gardasee mit 1.120 m² Grundstück in Lazise - Italien zum Kaufen

Immobilienmakler Einfamilienhäuser in Lazise am Gardasee von Italien
Einfamilienhaus Italien kaufen
Wohnhaus in Italien
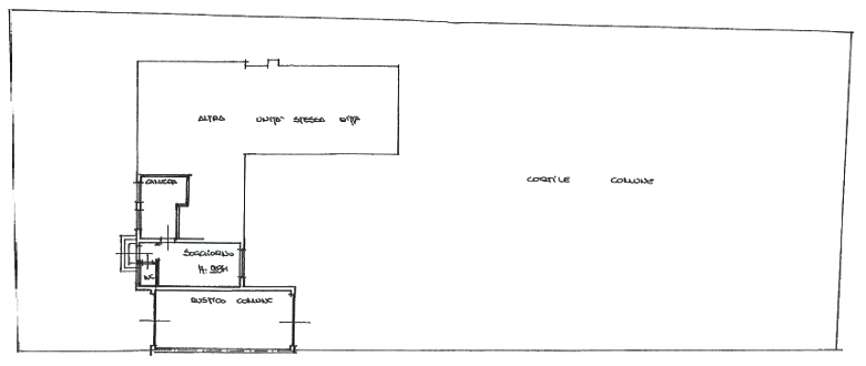
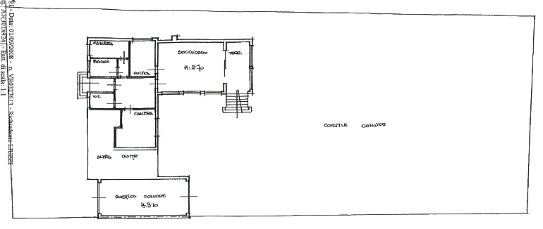
Erdgeschoss vom Einfamilienhaus
Grundriss Einfamilienhaus

Einfamilienhaus / Ferienhaus am Gardasee in Lazise - Italien

  • Ort: Lazise am Gardasee ( Venetien - Verona )
  • Grundstück vom Einfamilienhaus: 1.120 m²
  • Wohnfläche vom Einfamilienhaus: 143 m²
    ( gesamt 5 Zimmer inklusive der
    separaten Einliegerwohnung )
  • Erweiterungen sind möglich !
  • teilunterkellert, Garage
  • Baujahr Einfamilienhaus: 2008
  • Kaufpreis Einfamilienhaus: 1.350.000,- €