





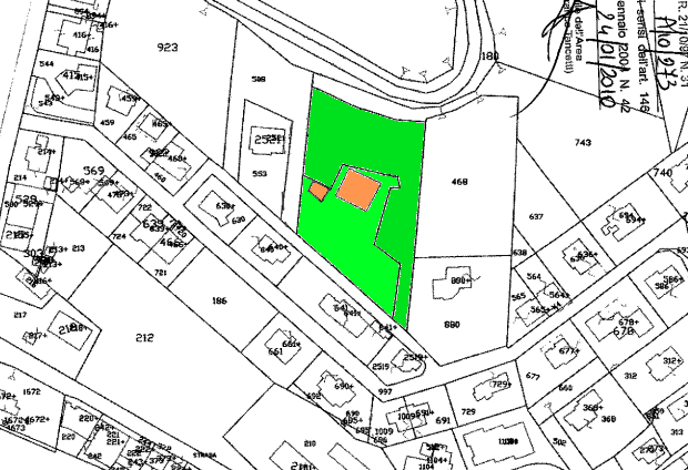
Das Grundstück hat eine Größe von
9.600 m², 1.700 m² davon sind bebaubar,
derzeit bebaut 600 m², verbleibende
noch möglich bebaubare Fläche
1.100 m².
Auf dem dunkelgrün markierten
Grundstücksanteil mit möglicher
separater Zufahrt kann bei Bedarf ein
weiteres Gebäude / Haus errichtet
werden !