Immobilienmakler Einfamilienhäuser in der Toskana von Italien
E-Mail Immobilienmakler Einfamilienhäuser Italien
Einfamilienhaus
Toskana
Immobilienmakler Einfamilienhäuser Ferienhäuser Wohnhäuser in San Giuliano Terme Toskana Italien
Toskana Einfamilienhaus in San Giuliano Terme
Haus in San Giuliano Terme der Toskana

Einfamilienhaus / Ferienhaus / Wohnhaus / Villa in den Bergen der Toskana bei
San Giuliano Terme ( unweit von Pisa ) in Italien

Villa / Einfamilienhaus bei Pisa der Toskana in San Giuliano Terme von Italien

Grundstück vom Einfamilienhaus bei Pisa
Grundstück zum Einfamilienhaus
Erdgeschoss vom Einfamilienhaus
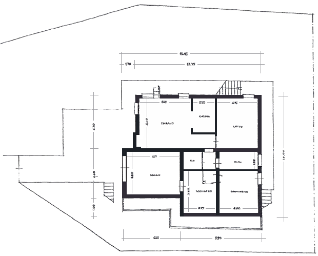
Grundriss Obergeschoss vom Einfamilienhaus in der Toskana
Unter und Obergeschoss vom Einfamilienhaus bei Pisa der Toskana
Einfamilienhaus bei Pisa in San Giuliano Terme der Toskana zum Kaufen
Einfamilienhaus in ruhiger Lage bei Pisa in San Giuliano Terme

Toskana - San Giuliano Terme bei Pisa - Einfamilienhaus / Ferienhaus / Wohnhaus / Villa in den Bergen Italiens zum Kaufen

Garten vom Einfamilienhaus bei Pisa Toskana
Eingangsbereich vom Einfamilienhaus
Grundstück vom Einfamilienhaus
Terrasse vom Einfamilienhaus
Ausblick vom Balkon des Einfamilienhauses
  • Lage vom Einfamilienhaus: unweit von Pisa in den Pisaner Hügeln des Naturparkes San Giuliano Terme in ruhiger idyllischer Landschaft
  • Baujahr Einfamilienhaus: 1970 ( 1994 komlette Sanierung vom Haus )
  • Grundstück zum Einfamilienhaus: ca. 950 m² ( eingezäunt )
  • Wohnfläche vom Einfamilienhaus: ca. 240 m²
  • Kaufpreis Einfamilienhaus: 950.000,- €

Obergeschoss

Erdgeschoss