


Ilha do Sal - Ferienhaus / Wohnhaus in Murdeira nah dem Meer und
mit Meerblick von Cabo Verde zum Kaufen


Die Kapverdischen Inseln liegen im Zentralatlantik, ca. 460 km vor der Westküste Afrikas und etwa 1.500 km südlich der Kanarischen Inseln; sie sind ab Deutschland in ca. 6 bis 7 Flugstunden zu erreichen.
Die Kapverden sind vulkanischen Ursprungs. Das Klima wird von den Nordwestpassat-Winden bestimmt und ist mild und trocken. Die Temperaturen liegen ganzjährig zwischen 25° und 30° C.
Zu den Kapverden gehören insgesamt 15 Inseln von denen 9 bewohnt sind. Eine davon ist die Sonneninsel Sal mit ca. 350 Sonnentagen im Jahr. Hier finden Sie herrliche weitläufige Sandstrände und kristallklares Wasser mit angenehmen Wassertemperaturen.
Ein Eldorado für Wind-, Wellen-und Kite-Surfer, Taucher, Wasser- und Sonnenhungrige. Sal wird mehr und mehr touristisch erschlossen und verfügt bereits jetzt über moderne und großzügige Hotelanlagen, insbesondere in Santa Maria, ist jedoch noch ohne Boom und Massentourismus.
Die Insel ist relativ flach, höchste Erhebung mit 405 m ist der Monte Grand.
Aufgrund fehlender Infrastruktur verläuft das Leben der Einheimischen eher in beschaulichen Bahnen. Viele Familien leben vom Fischfang, der auf Sal eine bedeutende Rolle spielt. Die ehemalige Saline zur Salzgewinnung in Pedra Lume ist heute zur Besichtigung freigegeben. Besichtigung und Salzbäder sind gegen Gebühren möglich.
Zahlungsmittel ist der Kapverdische Escudo.
Lebensmittel für den täglichen Bedarf sind in den inzwischen gut sortierten Supermärkten in Espargos und Santa Maria erhältlich.
Der internationale Flughafen ist in kürzester Zeit gut erreichbar.
Das Ferienhaus / Wohnhaus auf der Insel Sal liegt in einer gepflegten Ferienanlage in der Bucht von Murdeira, zwischen der Inselhauptstadt Espargos und Santa Maria. Die Ferienanlage verfügt über einen großen Meerwasser-Gemeinschaftspool mit Bar und Restaurant.
Großzügiges Ferienhaus / Wohnhaus, komplett eingerichtet inkl. PKW Marke Suzuki Vitara mit abnehmbaren Verdeck ( siehe Foto ).
Mit eigenem PKW sind Sie auf Sal unabhängig und mobil, denn öffentliche Verkehrsmittel gibt es noch nicht.
Verkaufspreis Ferienhaus / Wohnhaus ( inkl. PKW ) 135.000,- €.
Das Haus wurde im Jahr 2000 erbaut und befindet sich in einwandfreiem Zustand, mit unverbaubarem Meerblick. Entfernung zum Strand ca. 100 m.
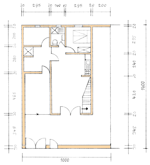
Über eine geflieste ebenerdige Terrasse gelangt man in den Wohnbereich. Das geräumige Wohnzimmer verfügt über SAT-TV-Radio-Anlage und Telefon.
Dahinter schließt sich der Essbereich an, mit einer komplett eingerichteten Einbauküche nach deutschem Standard ( Gasherd und Kühlschrank mit großem Gefrierfach ). Elektroanschluss 220 V.
Des Weiteren befinden sich im EG ein Schlafzimmer sowie Dusche und WC.
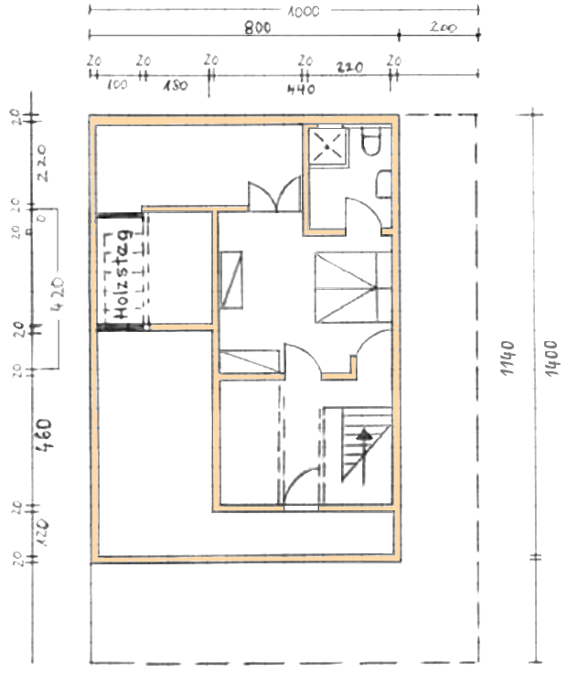
Über eine Treppe gelangt man in das OG, in dem sich ein weiteres Schlafzimmer mit Dusche/WC befindet. Eine Galerie im OG führt zur großzügigen Terrasse mit herrlichem Meerblick. Der Balkon des Schlafzimmers und die große Terrasse sind durch eine kleine Holzbrücke miteinander verbunden.
Unter der Terrasse befindet sich eine Garage mit Zugang zu einem Innenhof mit Freidusche und Trockenplatz ( begehbar auch von der Küche im EG ). Daran schließt sich ein kleiner Arbeits- bzw. Abstellraum inkl. Waschmaschine an. Alle Wohnräume sind hell gefliest.













Strand zwischen Murdeira und Santa Maria
unweit vom Ferienhaus ( ca. 2,5 km )
Wohnhaus nah dem Strand und Meer bei Santa Maria der Insel Sal

Erdgeschoss
Obergeschoss
Abstellraum
Dusche
offener Raum
Bad
Schlafen
Küche
Wohnen
Garage
Terrasse
Terrasse
Bad
Schlafen
Balkon
Galerie
Terrasse
PKW
Stellplatz
Grün-
bereich
Vorgarten