• Lage: in Brown’s Town - County Middlesex - Parish Saint Ann - Jamaika
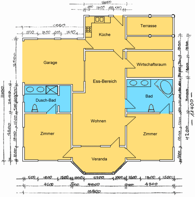
  • Nutzfläche vom Haus: 160 m²
  • mit 3 Zimmern, Küche, 2x Bad, Garage
  • 90 % fertiggestellt
  • Grundstück zum Einfamilienhaus: 1.200 m²
  • Kaufpreis vom Einfamilienhaus: 67.000,- €
Immobilienmakler Einfamilienhäuser auf Jamaika
E-Mail Immobilienmakler Jamaika Brown's Town
Einfamilienhaus
Saint Ann Middlesex
Jamaika Immobilienmakler Einfamilienhäuser mit Grundstück im Parish Saint Ann

Jamaika - Einfamilienhaus mit Grundstück in Brown’s Town im County Middlesex
Parish Saint Ann zum Kaufen / Verkäufer

Insel Jamaika der Karibik - Einfamilienhaus mit Grundstück in Brown’s Town

Einfamilienhaus auf der Insel Jamaika
Einfamilienhaus auf der Insel Jamaika
Einfamilienhaus auf Jamaika in Brown's Town Saint Ann
Grundriss vom Einfamilienhaus
Einfamilienhaus im Parish Saint Ann Jamaika
Wohnbereich vom Einfamilienhaus
Einfamilienhaus auf der Insel Jamaika
Veranda vom Einfamilienhaus
Einfamilienhaus mit Grundstück