


Kenia - Wohnungen / Ferienwohnungen / Apartments im Resort / Wohnanlage in Watamu mit Swimming-Pool


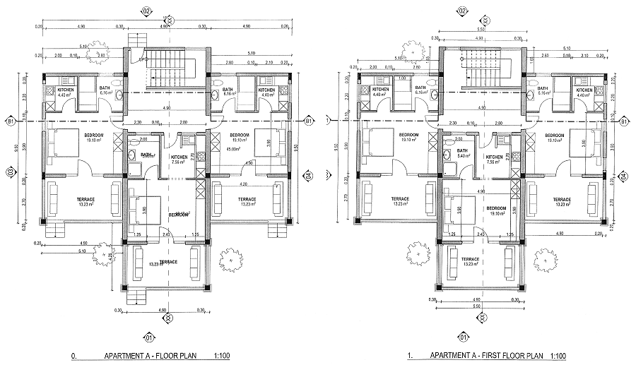
Gebäude Wohnung Typ A
Wohnungen Typ A
Grundrisse Apartments Typ B
Grundrisse Apartments Typ C
Service zu den Wohnungen / Apartments der Wohnanlage / Resort in Watamu - Kenia:



Watamu - Strand nur ca. 900 m ( Fußweg ) vom Grundstück der Wohnungen / Wohnanlage / Resort entfernt

Grundrisse Apartments Typ A





Projektverkauf ( Projekt inkl. Grundstück ) - Kaufpreis: 210.000,- €
Weiterte Informationen hierzu auf Anfrage !