E-Mail Immobilienmakler Wohnhäuser Teneriffa
Immobilienmakler für Wohnhäuser in Arona auf Teneriffa
Teneriffa großes Wohnhaus
Arona Teneriffa Kanaren
Wohnhaus mit großem Grundstück in Arona Teneriffa kaufen

Großes Wohnhaus mit großem Grundstück, mit Pool und Meerblick bei Arona - Insel Teneriffa der Kanaren
zum Kaufen / Verkäufer - Anbieter

Souterrain vom Haus bei Arona auf Teneriffa
  • Lage Wohnhaus: unweit von Arona - Teneriffa - Kanaren - Spanien, mit Meerblick
  • Grundstück zum Wohnhaus 10.000 m² mit grünem gepflegten Garten
  • Baujahr vom Haus: 2000
  • Nutzfläche des Wohnhauses über 3 Etagen: 440 m² mit 9 Zimmern, 3x Küche, 4x Bad, Terrassen, Balkone, Keller ( Felsenkeller ),
    Garage ( für 2 PKW ), Werkstatt, inklusive separatem Apartment und einem Studio
  • Klimaanlage, überdachter Pool, Höhle auf dem Grundstück ( zur Meditation ... )
  • Wasseraktie / Wasserrechte / Brunnenlizenz, öffentlicher Wasseranschluss + 10.000 l Wassertank
  • teilweise möbliert
  • Kaufpreis vom Wohnhaus mit großem Grundstück: auf Anfrage !
Immobilienmakler Anbieter Verkäufer von Wohnhäusern bei Arona auf Teneriffa
Obergeschoss vom Wohnhaus auf Teneriffa Kanaren
Wohnhaus mit Meerblick in Arona Teneriffa kaufen

Wohnhaus mit Meerblick Pool und großem Grundstück bei Arona - Insel Teneriffa der Kanaren zum Kaufen / Verkäufer

Wohnhaus
Souterrain

Wohnhaus
Obergeschoss

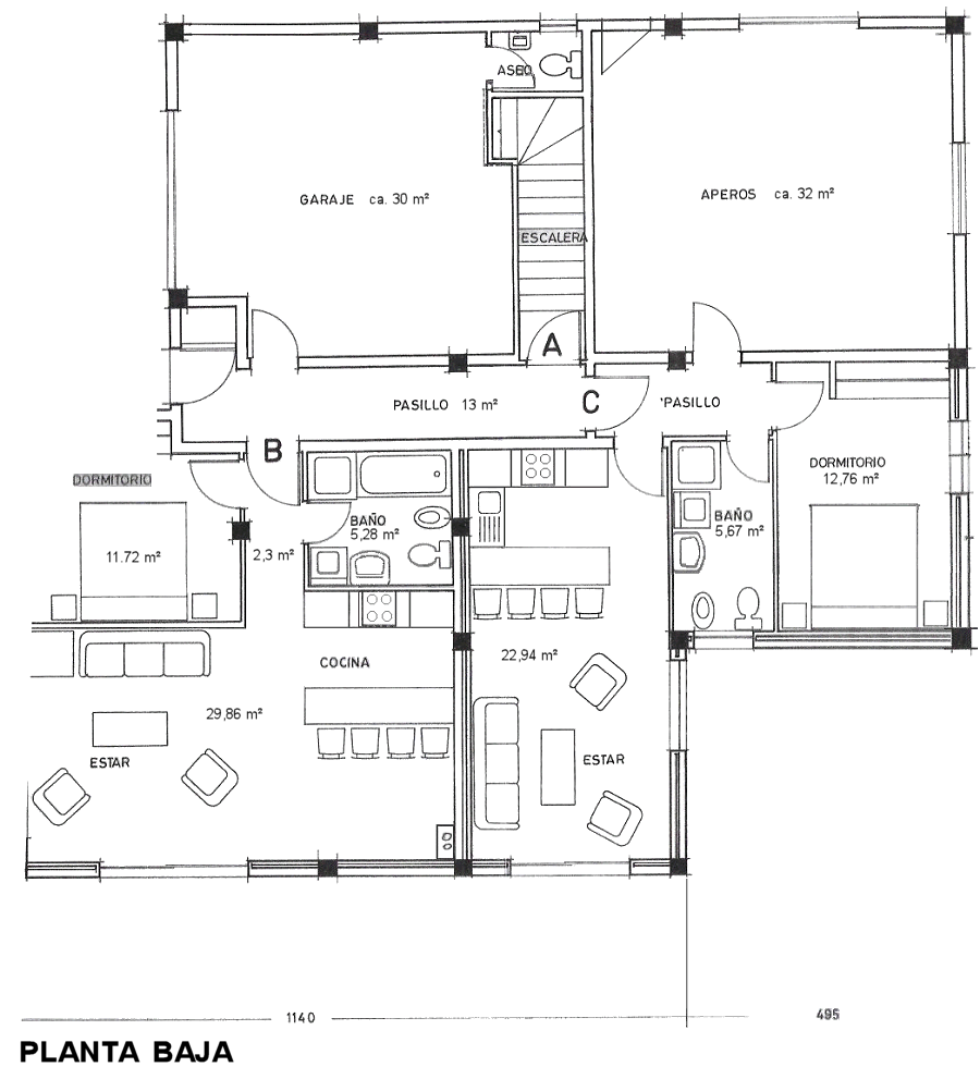
Grundriss Erdgeschoss vom Wohnhaus

Wohnhaus
Erdgeschoss