Ausbauhaus / Wohnhaus zum Ausbau in Opole ( Osiedle Chabrów ) in Polen
zum Kaufen / Verkäufer

  • Lage: in Opole - im Stadtteil Osiedle Chabrów - ruhige bevorzugte Wohnlage
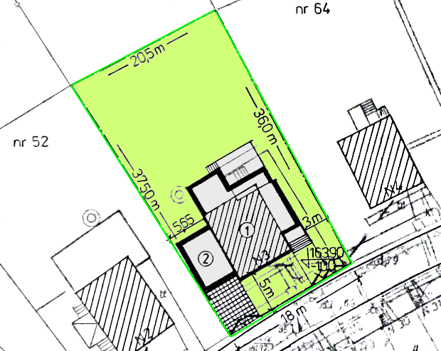
  • Grundstück zum Ausbauhaus: 957 m²
  • Nutzfläche vom Ausbauhaus: 265 m² ( 5 Zimmer, Küche, Bad )
  • Garage für 2 PKW
  • Kaufpreis Ausbauhaus / Einfamilienhaus: 159.000,- €
Opole Immobilienmakler Ausbauhäuser
E-Mail Immobilienmakler Häuser in Opole
Chabrow Opole Polen
Ausbauhaus
Immobilienmakler Verkäufer Ausbauhäuser in Opole Polen
Ausbauhaus in Opole Polen
Ausbauhaus in Opole Polen

Ausbauhaus in Opole der Woiwodschaft Opole von Polen

Ausbauhaus in Opole Stadtteil Chabrow zum Kaufen
Ausbauhaus mit Garge in Opole Polen
Einfamilienhaus zum Ausbau in Opole Chabrow
Grundstück Garten vom Ausbauhaus
Wohnhaus zum Ausbau in Opole zum Kaufen
Wohnzimmer vom Ausbauhaus
Erdgeschoss vom Ausbauhaus
Dile vom Ausbauhaus
Zimmer im Obergeschoss vom Ausbauhaus
Zimmer vom Ausbauhaus
Ausbauhaus in Osiedle Chabrow Opole zum Kaufen
Grundstück vom Ausbauhaus Einfamilienhaus
Grundstück in Opole