Immobilienmakler Ferienhäuser bei Sokolow Malopolski
E-Mail Immobilienmakler Häuser in Nienadowka Polen
Ferienhaus mit Grundstück
Nienadowka Powiat Rzeszow Karpatenvorland Polen
Immobilienmakler Verkäufer Ferienhäuser in Nienadowka und Sokolow Malopolski
Ferienhäuser in Polen kaufen
Häuser bei Sokolow Malopolski kaufen

Ferienhaus mit 1.700 m² Grundstück in Nienadówka unweit von Sokołów Małopolski / Powiat Rzeszów - Woiwodschaft Podkarpackie ( Karpatenvorland ) - Polen

Ferienhaus in Nienadówka bei Sokołów Małopolski im Powiat Rzeszów von Podkarpackie Polen
zum Kaufen

  • Lage: in westlicher Randlage von Nienadówka Powiat Rzeszów - Karpatenvorland - Polen, ca. 8 km südwestlich von Sokołów Małopolski entfernt
  • Grundstück zum Ferienhaus: 1.700 m² ( ca. 63 x 26 m )
  • Baujahr Ferienhaus / Wohnhaus: 2014
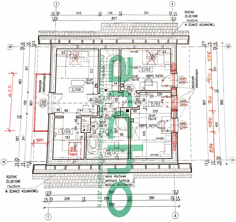
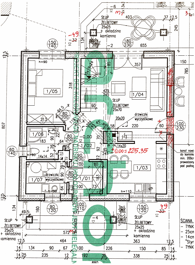
  • Wohnfläche vom Ferienhaus: ca. 110 m² mit 5 Zimmern, Küche, 2x Bad, Balkon
  • Kaufpreis Ferienhaus: 127.000,- €
  • Weitere Informationen zum Ferienhaus und Grundstück: auf Anfrage !
Erdgeschoss vom Ferienhaus in Nienadowka Karpatenvorland Polen
Obergeschoss vom Ferienhaus in Nienadowka bei Sokolow Malopolski Polen