

Wohnhaus / Ausbauhaus / Ferienhaus im Rohbau in Bernati ( Nicas novads ) bei Liepaja an der Ostsee von Lettland


Ostseeküste ist 800 m vom Wohnhaus entfernt, dazwischen der “Bernati Naturpark” von Lettland




Wohnhaus / Ferienhaus / Ausbauhaus mit 10.700 m² Grundstück ( weiteres Bauland ) ...

Das Haus ( Ausbauhaus ) kann als Wohnhaus, Pension, Hotel, Gaststätte, Apartmenthaus ... ausgebaut werden und befindet sich in einem beliebten Touristengebiet / Urlaubsgebiet.
Das Haus liegt ca. 70 m von der Hauptstraße Klaipeda - Nica - Liepaja ( A11 ) entfernt. Bis Liepaja sind es ca. 20 km.
Das Grundstück mit 10.700 m² gilt als Bauland / Baugrundstück und kann zur Erweiterung des Bestandes oder zur Parzellierung genutzt werden.
“Bernati Naturpark” an der Ostseeküste von Lettland


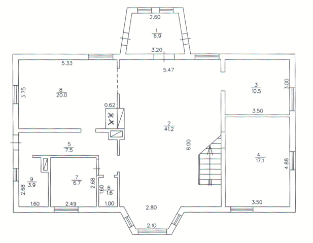
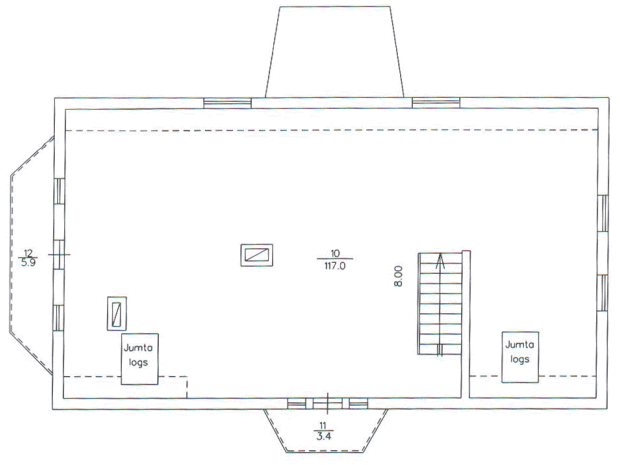
Grundriss zum Ferienhaus / Wohnhaus in Bernati / Nica / Liepaja in Lettland

Erdgeschoss vom Wohnhaus / Ausbauhaus

Obergeschoss vom Wohnhaus / Ausbauhaus