

Villa mit Gästehaus und großem Grundstück / Baugrundstück bei Gherla
und Cluj-Napoca - Siebenbürgen - Rumänien







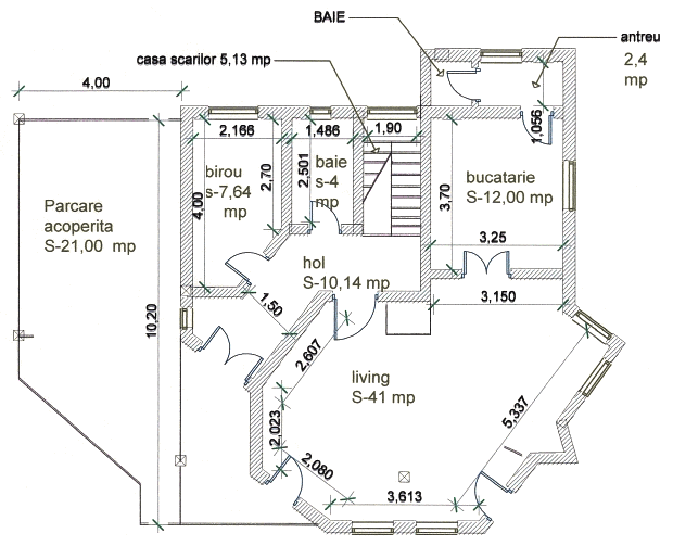
Villa
Einfamilienhaus
Erdgeschoss
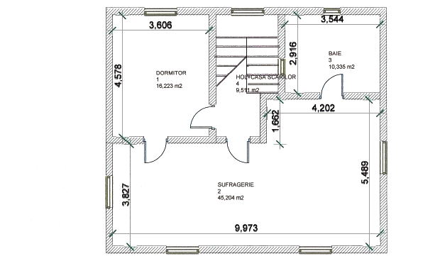
Villa / Einfamilienhaus
Obergeschoss
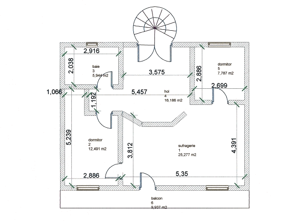
Villa
Dachgeschoss
Gästehaus
Erdgeschoss mit
Garage und
Abstellräumen,
Werkstatt
Gästehaus
Obergeschoss mit
Gästewohnung,
Apartment
11.600 m²
5.800 m²
17.400 m²