

Ferienhaus / Wohnhaus auf der Krim in Medvedevo im Rajon Chernomorskij der Autonomen Republik Krim




















Grundstück / Garten vom Ferienhaus / Wohnhaus bepflanzt mit:

Grundstück zum
Ferienhaus / Wohnhaus
1.200 m²
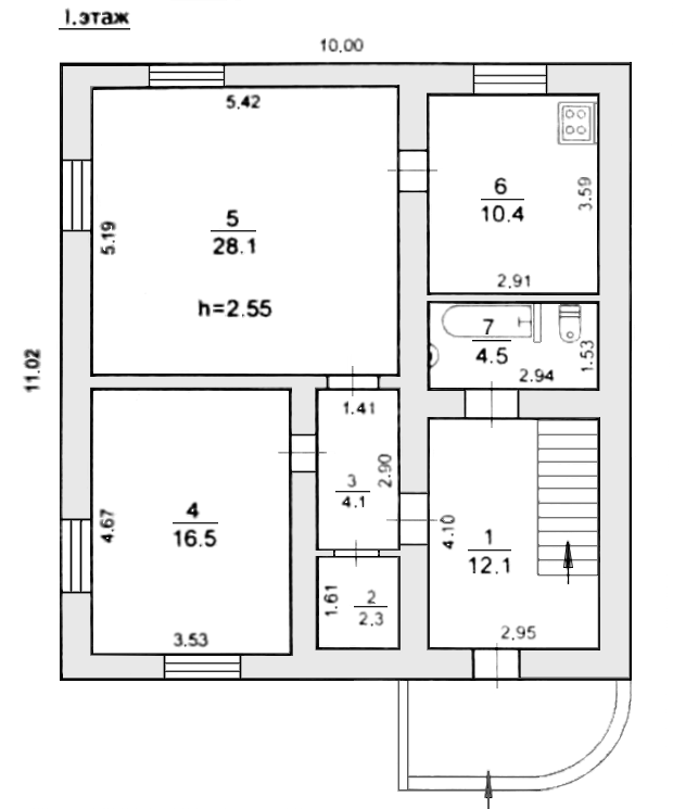
Erdgeschoss vom Ferienhaus
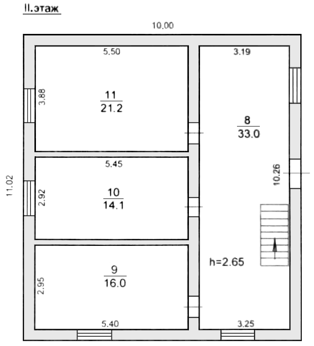
Obergeschoss vom Ferienhaus