Kunstgießerei / Künstlerwerkstatt in Opole - Polen zum Kaufen / Verkäufer

Immobilienmakler Künstlerwerkstätten Kunstgießereien in Opole Polen
E-Mail Immobilienmakler Werkstätten in Polen
Kunstgießerei
Opole Polen
Immobilienmakler Künstlerwerkstätten Kunstgiessereien in Opole Polen
Gewerbehalle für Kunstgießen in Polen
Kunstgiesserei in Opole Polen zum kaufen

Opole - Polen Gießerei ( Kunstgießerei ) / Werkstatt ( Künstlerwerkstatt ) / Schmiede ( Kunstschmiede ) Gewerbehalle für Kunstgießen zum Kaufen

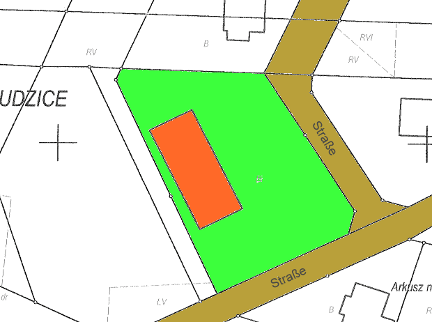
  • Lage: in Opole - Polen
  • Grundstück / Gewerbegrundstück: 2.385 m² ( alarmgesichert )
  • Halle / Werkstatt / Künstlerwerkstatt: 400 m²
  • mit Lastenkran für 5 Tonnen, Kraftstrom, Druckluftanlage
  • Einfahrt für LKW und PKW
  • Kaufpreis Schlosserei / Kunstgießerei / Kunstschmiede: auf Anfrage !
Gewerbehalle der Kunstgiesserei Künstlerwerkstatt in Opole Polen
Künstlerwerkstatt in Polen
Gewerbegrundstück mit Kunstgiesserei in Opole Polen zum kaufen
Gießerei in Polen zum Kaufen
Werkstatthalle der Kunstgießerei
Außenbereich der Kunstgießerei
Gewerbehalle Künstlerwerkstatt in Opole Polen
Gießerei Kunstgießerei in Polen zum Kaufen
Kunstgießerei in Polen
Künstlerwerkstatt in Polen
Kunstschmiede Künstlerwerkstatt in Polen zum Kaufen
Kunstgießerei in Opole Polen zum Kaufen