

Wohnhaus / Mehrfamilienhaus mit Gewerbemöglichkeiten in Ruma - Vojvodina - Serbien zum Kaufen / Verkäufer


Das Haus bzw. die Häuser befinden sich im Ort Ruma ( ca. 32.000 Einwohner ) im Okrug Srem der Provinz Vojvodina von Serbien in einem relativ neuen Wohngebiet.
Das Haus zur Straße hin wurde 1976 erbaut und 2006 komplett renoviert ( neue Fliesen, Treppen + Geländer, Tür- abschluss im 1.OG, Fenster + Rollläden, Balkone, Malerarbeiten, Heizkörper, Heizung mit Stadtgasanschluss, neue Strominstallation, Internet, Telefon ... ).
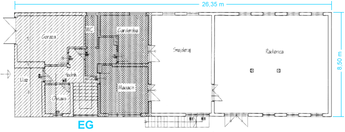
Der Anbau, Ausbau an das Haus erfolgte 2006 ( EG vorbereitet zur gewerblichen Nutzung mit separatem WC ). Die Genehmigung zum Umbau einer Wohnung liegt vor, da ein separater Zugang vorhanden ist. Das 1.OG + DG ist zu einer Wohneinheit mit Balkon und direktem Zugang vom Balkon mit Treppe in den Garten an den neuen betonierten Pool ( ca. 4,5 x 7 m ) und Gartenterrasse mit Überdachung ausbaufähig. Der Garten ist angelegt und die Umrandung vom Pool bzw. der Hofzufahrt ist bereits angelegt und in roten und grauen Farbtönen gepflastert.
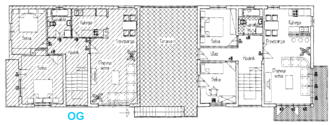
1. OG und DG könnten auch separat als Wohnung genutzt werden. Im DG sowie im 1.OG sind die Küchenanschlüsse vorhanden und jeder Stock verfügt über ein separates Bad mit WC.
Alle Räume sind wohnfertig ( Laminat, neue Fenster + Rolläden, teilweise sind die Malerarbeiten abgeschlossen, Fliesen im Treppenhaus, Buche Treppengeländer, Küche gefliest, alle Bäder gefliest im modernen Design, Heizung bereits installiert.
Beide Häuser sind sofort bewohnbar. Im Anbau ( Neubau ) fehlen lediglich die Zimmertüren + sanitären Anlagen ( Wanne + WC + Waschbecken ), ansonsten vollständig mit Strom, Telefon usw. ausgestattet und bezugsfertig.
Sehr gute Lage, Einkaufsmöglichkeiten direkt in der Nähe ( mehrere kleine Geschäfte, Discounter, Getränkehändler, Kindergarten + Schulen ... ) zum Zentrum zu Fuß ca. 10 Minuten. Bus und Zuganschluss befinden sich in der Stadt.
Ruma ist eine gut ausgebaute Stadt mit Bahnhof und allen Geschäften für das tägliche Leben, liegt ca. 68 km zur kroatischen Grenze und ca. 2 Stunden zur Ungarischen Grenze entfernt. Im Umfeld befinden sich diverse Sehenswürdigkeiten.
Das zu den Häusern gehörende Grundstück hat ca. 500 m² und ist komplett mit einer Mauer zu den anliegenden Nachbarn abgegrenzt. Noch nicht erneuert wurde der Zaun bzw. Toreinfahrt. Vor dem Haus sind noch 4 befestigte Autostellplätze + ein eigener Wasserhydrant welcher aufgrund der Größe des Objektes und der eventuellen gewerblichen Nutzung extra installiert wurde.
Für den Pool bestehen extra Wasserzuleitungen ( Warm + Kalt ) sowie ein Abwasserschacht !
Das Objekt ist geeignet für Großfamilien oder auch 2 Parteien bzw. für Kapitalanleger, da beide Häuser in mehrere Wohnungen teilbar sind bzw. so genutzt werden können. Mietwohnungen sind im Ort immer gefragt und kein Problem entsprechende Mieter zu finden.
Wohnfläche 1. Haus ca. 192 m² + Garage und Nebengebäude
Wohnfläche 2. Haus ca. 350 m² + Nutzflächen + Pool + Garten