

Koktebel - Wohnhaus / Ausbauhaus nah dem Meer der Südküste Insel Krim

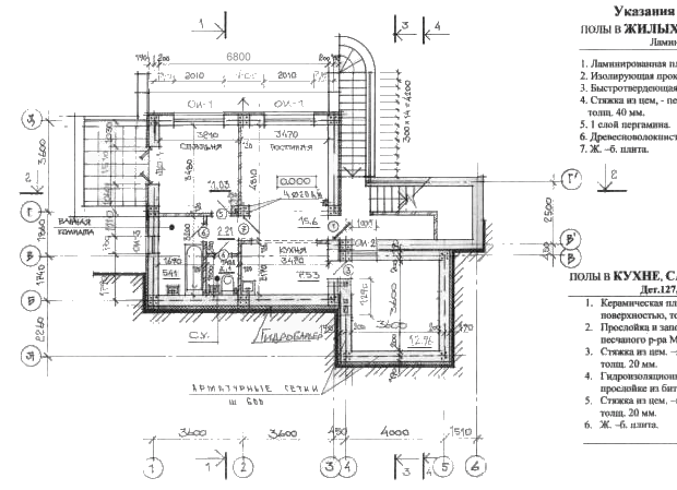
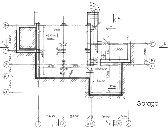
Grundrisse zum derzeitigen Bestand vom Wohnhaus / Ausbauhaus auf der Krim


Variante für einen Ausbau / Erweiterung vom Wohnhaus

mögliche Variante zum Ausbau bzw. der Erweiterung des Wohnhauses

Grundstück vom Wohnhaus / Ausbauhaus in Hanglage

Grundstück vom Wohnhaus / Ausbauhaus
844 m²